承接(空气能、太阳能)热水采暖工程,免费看图,免费做报价预算!欢迎咨询合作!热线:15155690462【微信电话同号】

  • 光伏直驱空气能常见问答

    2025年9月4日 下午4:00

    光伏直驱空气能常见问答 什么是光伏直驱空气能? 可以直接使用太阳能光伏发电驱动的空气能主机。 光伏板发出的是直流电,需经逆变器后变为交流电,才能够上网,或者供家用电器使用。而光伏直驱空气能是指光伏发出的直流电可以直接驱动热泵主机...

  • PVT光伏光电热水系统

    2025年5月23日 上午9:24

    PVT光伏光电热水系统 PVT光伏光电热水系统 PVT 产品主体:1、PVT 组件;2、热泵主机;3、系统开发,光热应用研究。 PVT组件特性: PVT光伏/光热一体化应用,是利用太阳能PVT组件在发电同时产生的热能提供热水或供暖,是PVT组件和多能...

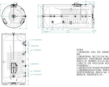
  • PVT光伏光电热水系统换热水箱

    2025年5月22日 上午10:38

    PVT光伏光电热水系统换热水箱   光伏光电热水系统换热水箱 300L分体式搪瓷单盘管水箱外形尺寸图 技术要求: 1.水箱表面应清洁,无油污、变形、局部缺泡等缺陷: 2.水箱标称容量300L,额定工作压力为0.7MPa;换热器材质为20#,外壁...

  • 10匹光伏直驱变频热泵

    2025年2月18日 下午1:26

    10匹光伏直驱-直流变频冷暖机 10匹光伏直驱变频热泵 光伏直驱-直流变频冷暖机的详细参数表(3匹/6匹/8匹/10匹)

  • 8匹光伏直驱变频热泵

    2025年2月17日 下午1:26

    8匹光伏直驱-直流变频冷暖机 8匹光伏直驱变频热泵 光伏直驱-直流变频冷暖机的详细参数表(3匹/6匹/8匹/10匹)

  • 6匹光伏直驱变频热泵

    2025年2月16日 下午1:26

    6匹光伏直驱-直流变频冷暖机 6匹光伏直驱变频热泵 光伏直驱-直流变频冷暖机的详细参数表(3匹/6匹/8匹/10匹)

  • 3匹光伏直驱变频热泵

    2025年2月15日 下午1:26

    3匹光伏直驱-直流变频冷暖机 光伏直驱-直流变频冷暖机的详细参数表(3匹/6匹/8匹/10匹) 3匹光伏直驱变频热泵 什么是光伏直驱空气源热泵? 光伏直驱空气源热泵是一种结合光伏发电与热泵技术的清洁能源设备,通过光伏板直接驱动压缩机工作,...